HAAGSTEDE-Maarssen
In Maarssen is een nieuwe woonwijk Haagstede gepland.
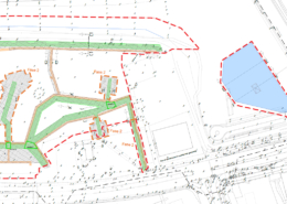
Aan de hand van het stedenbouwkundig concept is de voorbelasting uitgewerkt.
Allereerst is een hoogtemeting van het terrein gedaan.
Ontgraving en aanvulling zijn op tekening gezet.
De aangebrachte voorbelasting is door ons gemonitord. Deze maand voor de laatste maal.
Nu werken we hard aan de verdere ontwikkeling van het plan. Bouwrijp maken, met rioleringsplan, nutsleidingen en grondprofielen zijn in conceptfase.
De start van het bouwrijp maken staat gepland voor het 4e kwartaal dit jaar.

































