Moldonkers
  • Bureau
    • Profiel
    • Diensten/Disciplines
    • Referenties
    • Vacatures
    • Routebeschrijving
  • Actueel
  • Projecten
    • Projectmanagement
    • Projectmanagement
    • Ontwerpen
    • Civiele-, & cultuurtechniek
    • Beheer Buitenruimte
    • Groentechniek
    • Toezicht & directievoering
    • Landmeten & Inventariseren
    • Aanvullend / ondersteunend
  • Nieuwsbrief
  • Klik om het zoekinvoerveld te openen Klik om het zoekinvoerveld te openen Zoek
  • Menu Menu

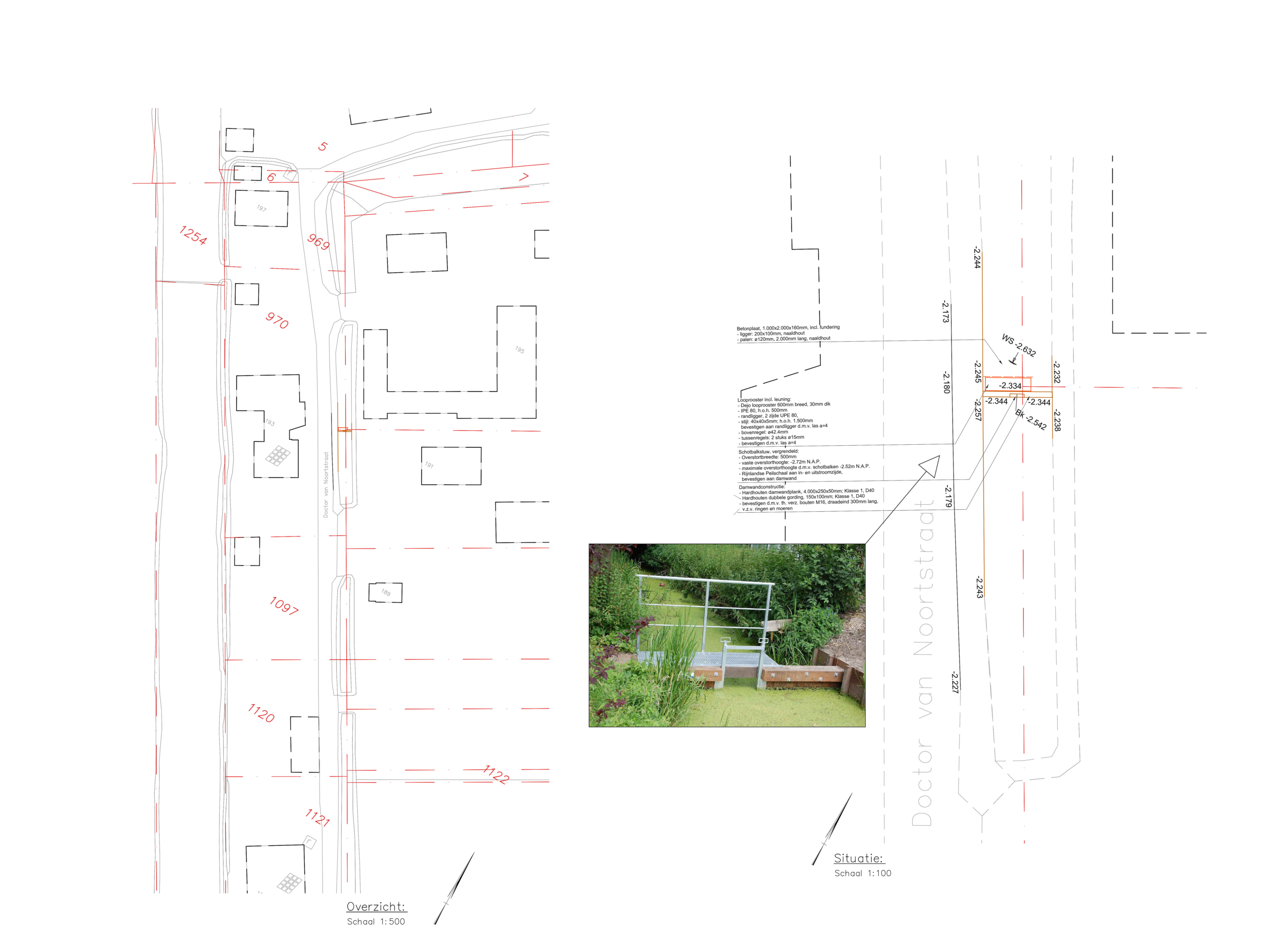
STUW-Leidschendam

opdrachtgever  :Servicedienst Reeuwijk

planuitwerking   :  2018

omschrijving  :

In opdracht van SDR hebben wij een door hen aangebrachte stuw in een revisietekening vastgelegd.

werkzaamheden:
Inmeting

Projecten

  • Projectmanagement
  • Ontwerpen
  • Civiele-, & cultuurtechniek
  • Beheer Buitenruimte
  • Groentechniek
  • Toezicht & directievoering
  • Landmeten & Inventariseren
  • Aanvullend / ondersteunend

Duitslandlaan 17
2391 PC Hazerswoude-Dorp
0172 – 217 500
riede@moldonkers.nl

© Copyright – Moldonkers

 

  • Privacy-verklaring
  • Disclaimer
Link naar: PETENBOS – Veenendaal Link naar: PETENBOS – Veenendaal PETENBOS – Veenendaal Link naar: HAAGSTEDE – Maarssen Link naar: HAAGSTEDE – Maarssen HAAGSTEDE – Maarssen
Scroll naar bovenzijde Scroll naar bovenzijde Scroll naar bovenzijde