HOUTZAGERIJ / vm BIBLIOTHEEK Laren
2016
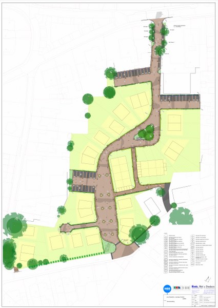
Op het terrein van de oude houtzagerij en de voormalige bibliotheek in de gemeente Laren komt woningbouw. De oude monumentale kraanbaan wordt opgenomen in de rijbaan. De kraanbaan bestaat uit 5 houten jukken, waaronder door gereden kan worden. Om de voet van de jukken komt een aanrijdbescherming. Bovenop ligt de transportbaan.
Parkeren in dit nieuwbouwgebied vind plaats of in de voortuin of op parkeer-hofjes. De perceelafscheidingen zullen bestaaan uit hagen; hoog om de achtertuin en laag aan de voorzijde.
Voor dit gebied hebben wij de inrichtingstekening verder uitgewerkt, het rioleringsplan en het beplantingsplan gemaakt en een RAW –bestek opgesteld.















