
CAMPINA CENTRAAL – Woerden
opdrachtgever : Hollandsmidden
planuitwerking : 2017
omschrijving :
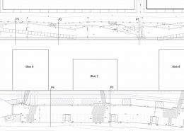
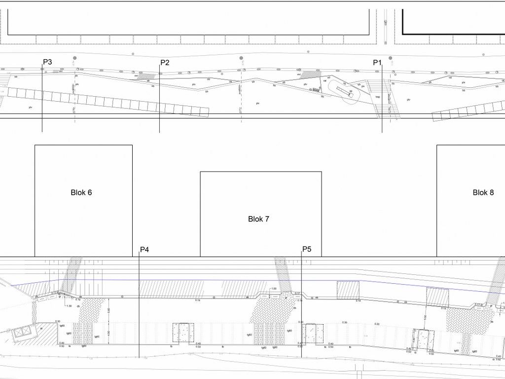
Op de langgerekte bouwstrook van het voormalige Campina-complex verrijzen 5 woontorens (Blokken 5 t/m 9). Met een gemeenschappelijke parkeergarage.
Op het zuiden, langs het spoor, komt een ontsluitingsweg met parkeerplaatsen. Hierlangs komt een watergang tot aan de voet van de bebouwing. De torens worden hier met een loopbrug ontsloten.
Op de parkeergarage komt een daktuin, die middels trappen en hellingbanen toegankelijk is vanaf de fietsstraat aan de noordzijde.
werkzaamheden:
inmeting, technische uitwerking, uitzetten, aanbesteding, directievoering

















