EVIDES – Rotterdam
2016
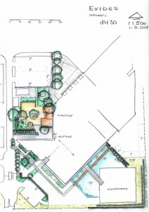
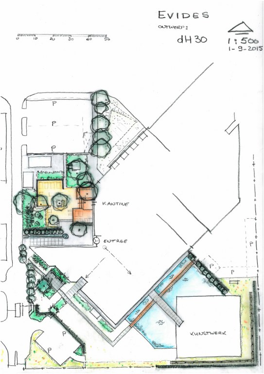
In 2015 kwam het waterleidingbedrijf Evides met het verzoek voor een tweetal ontwerpen voor de kantoortuin te Rotterdam.
Het robuuste kantoorgebouw werd inwendig helemaal gestript en wordt aangepast aan het nieuwe werken van het bedrijf. De tuininrichting moest hier op aangepast. Uit de twee versies is gekozen voor het ontwerp met de strakke lijnen.
Schetsontwerp Ontwerp Detail ontwerp entree/terras
Het plan voorziet in een ommuurd terras met vlonders aansluitend aan de kantine. Bij de entree moeten betonplaten en grote tegels het robuuste gevoel versterken. Een haag met berkenstammetjes ervoor begeleidt de looprichting.
De bestaande fietsenstalling en motoroverkapping gaan naar de achterzijde van het gebouw. Aan deze kant ligt eveneens een groot, uit cortenstaal gemaakt kunstwerk. Dit kunstwerk krijgt een omlijsting van leibomen aan de kant van de A16. Tussen kunst en gebouw komt een golvend grasveld, als verwijzing naar de werkzaamheden van Evides. Oorspronkelijk was hier een waterpartij gedacht, maar bestaande leidingen gooiden roet in het eten. Verder is de terreinindeling rustig gehouden, grote grasvlakte met enkele plantvakken.
Veel materialen zullen worden hergebruikt. Zo worden de gebakken klinkers verwerkt in de hellingbaan en in schanskorven.
Het plan is verder door ons uitgewerkt met opruim-,en uitvoeringstekening en beplantingsplan. Werkomschrijving, kapvergunning en klicmelding zijn ook gedaan.
In februari 2016 (week 5) is gestart met de uitvoeringswerkzaamheden.
In onderstaande galerij ziet u de vorderingen per week in beeld vastgelegd.
Inmiddels is de tuin in de afrondende fase gekomen. (week 19) Hier en daar nog een paar puntjes op de i zetten.
Waarop in week 22 de oplevering volgde, zie onderstaande foto’s.
Bewaren
Afbeeldingen
week 22 -oplevering
week 19 -afronding
week 18
week 16
week 15
week 14
week 10
week 9
week 8
week 7
week 5


















































































