
EVIDES – Rotterdam
opdrachtgever :
Evides
planuitwerking : 2015
omschrijving :
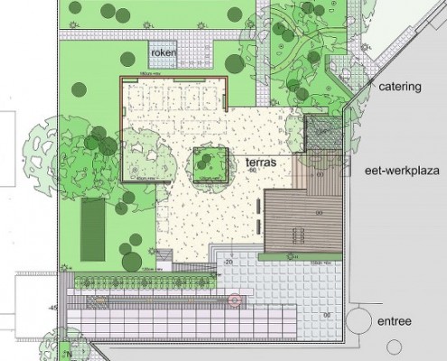
In 2015 kwam het waterleidingbedrijf Evides met het verzoek voor een tweetal ontwerpen voor de kantoortuin te Rotterdam.
Uit de twee versies is gekozen voor het ontwerp met de strakke lijnen. Het plan voorziet in een ommuurd terras met vlonders aansluitend aan de kantine. De bestaande fietsenstalling en motoroverkapping gaan naar de achterzijde van het gebouw. Aan deze kant ligt eveneens een groot, uit cortenstaal gemaakt kunstwerk. Dit kunstwerk krijgt een omlijsting van leibomen aan de kant van de A16. Tussen kunst en gebouw komt een golvend grasveld, als verwijzing naar de werkzaamheden van Evides. Verder is de terreinindeling rustig gehouden, grote grasvlakte met enkele plantvakken.
Middels de link in het zijmenu van Actueel – Eerdere publicaties kunt u de totstandkoming van dit project zien aan de hand van foto’s.
werkzaamheden:
ontwerp, technische uitwerking, uitzetten, aanbesteding, directievoering
Voor foto’s van de uitvoering van dit project zie : Actueel – Eerdere publicaties














