
BLIJDORP -wallabies Rotterdam
opdrachtgever : Diergaarde Blijdorp
Rotterdam
planuitwerking : 2011
omschrijving :
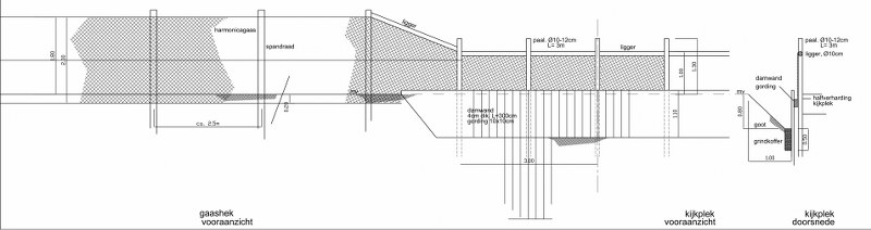
De moeraswallabies hebben in hun nieuwe verblijf de beschikking gekregen over zandbunkers en schuilplekken. Vanaf het slingerpad, dwars door het verblijf, staat de bezoeker oog in oog met de kangoeroes, alleen maar gescheiden door een voethekje. Langs de buitenrand zijn nieuwe kijkplekken gemaakt.
werkzaamheden:
Ontwerp, detaillering






















