BLIJDORP -Bizons Rotterdam
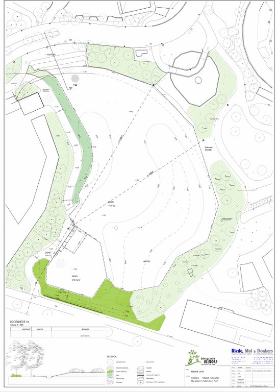
De bizon-weide gaat opgeknapt worden. Het terrein zal worden opgehoogd en er ontstaat een glooiend landschap, in hoogte oplopend van voor naar achteren en opzij. De natte plek zal worden ontwaterd. De bizon-kraal komt achterin te liggen. De looproute langs de bizons blijft vooralsnog ongewijzigd. Twee opties zijn wel meegenomen. De eerste is een kijkplek op de huidige plaats, de tweede is een kijkplek iets meer het verblijf in en dan verhoogd. De verhoging kan d.m.v. grond zijn, of een houten plankier, die door het naastgelegen plantvak terugvoert naar de hoofdroute.
Het houten hekwerk met gaas zal worden vervangen door een hekwerk met kunststofpalen, schapengaas en schrikdraad.
Om de bizons tijdelijk op te vangen wordt er in de HSL-driehoek een verblijf gemaakt. In de toekomst kunnen hier ook andere dieren voor korte tijd opgevangen worden. Het hekwerk van dit verblijf zal worden uitgevoerd met een stevig dubbelstaaf-mat en schrikdraad. Een deel van de grondopslag in de HSL-driehoek zal voor de ophoging van de weide gebruikt worden.















