
DE GOEDE REE – Reeuwijk
opdrachtgever : GB Vastgoed
planuitwerking : 2012-2016
omschrijving :
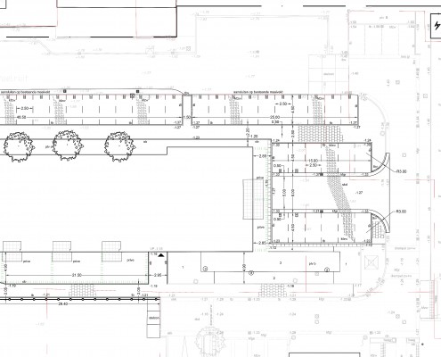
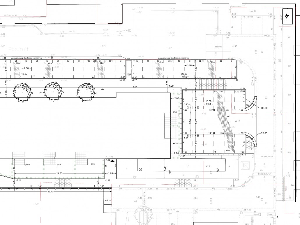
De nieuwbouw van De Goede Ree is nu in fase 3. Dit betekent dat het eerste deel van de straatinrichting uitgevoerd kon worden. De Poelruit wordt uitgebreid met een strook haaksparkeren, waaronder grotendeels privé-parkeerplaatsen (23 van de 29 pp, met een beugel afgeschermd). Op de korte gevel van het appartementengebouw is een parkeerhaven gemaakt; 4 privé en 8 openbaar. Het bijbehorend tekenwerk: opruim-, grondwerk-, uitvoerings-, en rioleringstekeningen hebben we gemaakt.
Als de laatste nieuwbouw gereed is, volgt de resterende straatinrichting. Ook hier haaksparkeren aan een zijde, en op het dak van de parkeergarage een siertuin met daarin opgenomen een jeu de boules baan. Een pergola markeert de toegang naar het appartementencomplex.
werkzaamheden:
Landmeten, inventariseren, ontwerpen, vergunningen, technische uitwerking.











