
RAADHUISPLEIN – Waddinxveen
opdrachtgever: Gemeente Waddinxveen
planuitwerking : 2023
omschrijving:
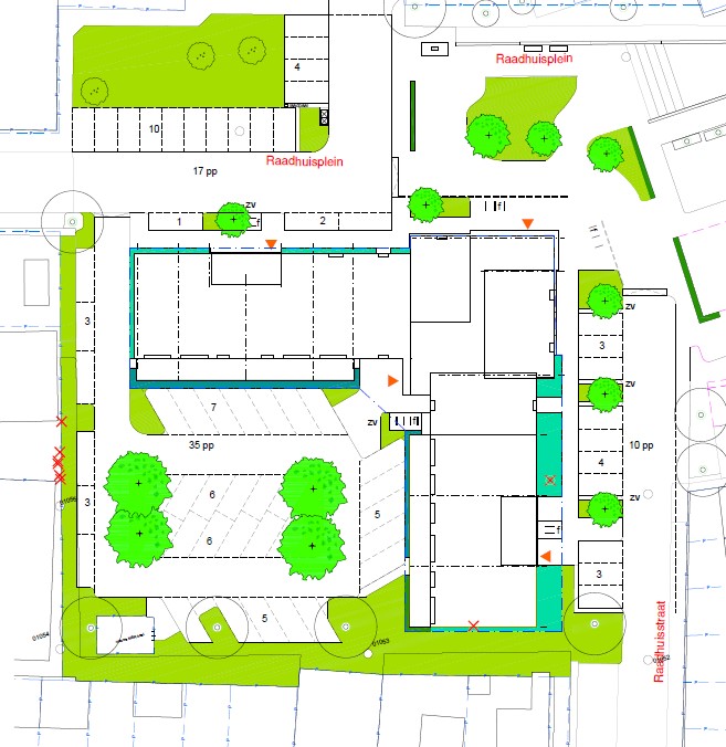
Het voormalige gemeentehuis aan het Raadhuisplein is in september 2021 gesloopt.
Op deze locatie wordt nieuwbouw ontwikkeld voor 37 appartementen, bestaande uit twee- en driekamerappartementen.
Het binnenhof van het appartementencomplex wordt zo groen mogelijk aangekleed door bestaande bomen te behouden en hier nieuwe bomen aan toe te voegen. Dit geeft het binnengebied een vriendelijke uitstraling.
De parkeerplaatsen krijgen hier halfopen verharding om het gebied verder te vergroenen en om regenwater op te vangen. Ook het Raadhuisplein wordt een zo aantrekkelijk mogelijk verblijfsgebied. Veel groen zal hittestress tegengaan.
De werkzaamheden voor dit plan bestaan uit het maken van een plan van schetsontwerp tot definitief ontwerp voor de buitenruimte met daarbij een beplantingsplan. Deze plannen werden presentabel gemaakt voor informatieavonden voor bewoners.
Voorbelasting is geplaatst ter plekke van de toekomstige parkeerplaats, er is nog niet gestart met de bouw van de appartementen.
werkzaamheden:
Ontwerp buitenruimte, beplantingsplan






