
ZONNEVELDHOF Hazerswoude Rijndijk
opdrachtgever : Habeko Wonen
planuitwerking : 2011
omschrijving :
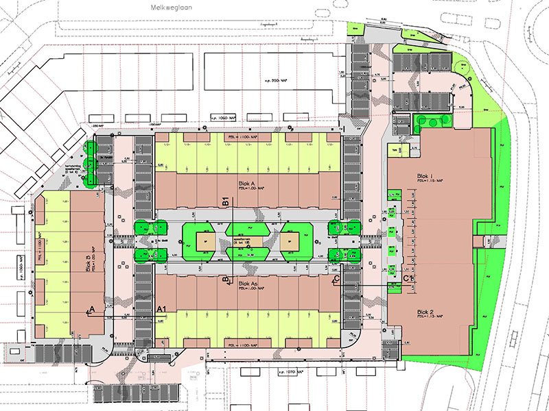
Achtereenvolgens bouwrijp en woonrijp maken van de buitenruimte, waarbij riolering, verharding, verlichting, groen en speelvoorzieningen op elkaar zijn afgestemd. Het werk is voorbereid in een RAW-bestek.
Tevens is er tijdens de uitvoering toezicht gehouden door Riede, Mol & Donkers.
werkzaamheden:
Technische uitwerking, bouwrijp, woonrijp, bestek opstellen






















