
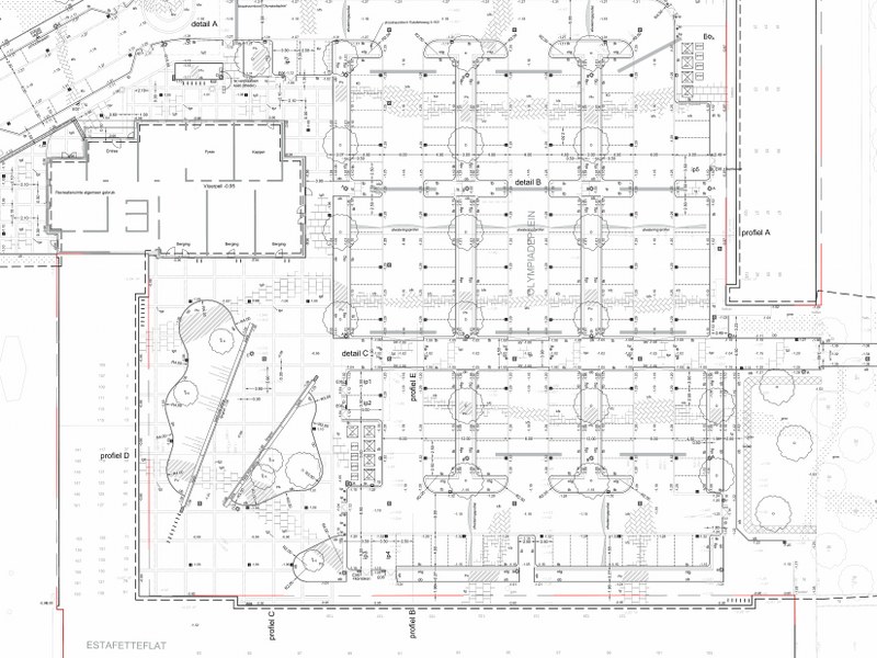
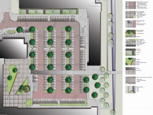
OLYMPIADEPLEIN Gouda
opdrachtgever : Gemeente Gouda
planuitwerking : 2013-2014
omschrijving :
Herinrichting van de parkeerplaats en het bewonersplein. Voor de aanbesteding van het werk onder EMVI-criteria maakten wij de benodigde tekeningen als onderdeel van het RAW-bestek.
werkzaamheden:
technisch uitwerken, opruim-, leidingen- en rioleringsplan, bestek opstellen.



















