
HART VAN DE MEERN-De Meern
opdrachtgever : Bon Groep B.V.
planuitwerking : 2018-2019
omschrijving :
In de gemeente De Meern hebben wij de voorbereidende werkzaamheden voor de aanleg van een woonwijkje in uitvoering in samenwerking met ontwerpbureau VlugP uit Amsterdam.
Het betreft hier een nieuwbouwlocatie voor 57 woningen.
Aan de orde zijn zoal gekomen: terreininrichting, rioleringsplan, waterbalans (bestaand en nieuw), parkeervoorzieningen, verlichtingsplan.
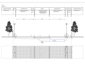
Doorsnedes, Miva-route, locatie containerverzamelpunten en overzicht brandkranen completeren het voorbereidingswerk.
De rondgaande ontsluitingsweg heeft één verbinding met de Castellumlaan. De parkeervoorzieningen zijn geclusterd in een aantal plekken met haaks parkeren en enkele langsparkeerplaatsen.
Ten noorden en westen is een groenstrook met daarin opgenomen een wandelpad en een aantal speelelementen. Voor de allerkleinste kinderen is centraal een speelplekje in het groen gemaakt.
30 juni 2020 gaan de woningen in de verkoop.
Op de projectsite: www.woneninhartvandemeern.nl zijn twee van onze tekeningen te downloaden (terreininrichting en overzicht percelen)
werkzaamheden:
Meting, ontwerp, technische uitwerking

















